Технические данные
Преимущество индивидуального проектирования гидравлических станций состоит в том, что на основе проекта можно изготовить оборудование с особыми техническими характеристиками, которые на 100% соответствуют предъявляемым требованиям к эксплуатации.
Возможно проектирование станций с характеристиками:
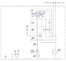
- Скорость подачи гидравлической жидкости от 5 до 250 л/мин. Быстрая подача масла обеспечивает работу динамических инструментов, а также стационарных технологических линий. Они могут совершать непрерывную работу в течение длительного времени по циклической схеме. При необходимости проектной документацией предусматривается установка теплообменников, которые охлаждают масло.
- Давление масла в исполнительных механизмах в пределах от 100 до 350 бар и выше, до 2500 бар (250 МПа). Станции высокого давления используются для обеспечения работы механизмов, создающих больше усилие. К ним подключаются прессы, подъемники, толкатели, прокольные установки и т.п. Маслостанции, подающие рабочую жидкость с давлением 350 бар и выше, дают возможность уменьшить размеры цилиндров и сократить стоимость исполнительных инструментов.
- Баки для масла объемом от 20 до 1000 литров. Расчет емкости бака при проектировании осуществляется на основе количества и объема гидроцилиндров и других исполнительных механизмов. Возможна установка бака из металла или пластика. Предусматриваются меры, защищающие от коррозии, а также фильтрующие элементы, обеспечивающие чистоту масла.
- В зависимости от необходимости автоматизации работы гидростанции могут использоваться распределители с ручным и электромагнитным управлением, пропорциональные распределители.
В качестве силовых агрегатов предусматривается возможность установки электромоторов постоянного и переменного тока, двигателей внутреннего сгорания на дизельном топливе и бензине, пневмо- и гидроприводов.
Получите коммерческое предложение от нашей компании. Просто заполните форму ниже!
Данные для проектирования
Создать качественный проект маслостанции можно только в том случае, если наши специалисты получат для этого необходимые первичные данные. К ним относятся:
- Основные параметры. Сюда включаются необходимое давление для работы исполнительных устройств, скорость подачи рабочей жидкости, емкость бака, количество и тип гидрораспределителей.
- Условия эксплуатации гидравлической станции. К ним относятся режим работы (кратковременный или постоянный), температура окружающего воздуха, схема функционирования при автоматическом или полуавтоматическом управлении.
- Характеристики исполнительных устройств. При составлении заказа указывается нужная скорость перемещения штоков цилиндров, величина оказываемой нагрузки, длина хода штока. На основе этих параметров инженеры нашей компании могут рассчитать основные характеристики гидростации.
- Количество исполнительных устройств. Необходимо указать количество инструментов и запитываемого оборудования. Рекомендуется предоставить паспортные данные и техническую документацию на оборудование.











